Each semester in school we focus on a different niche in the design field, this semester we focused on commercial office design.
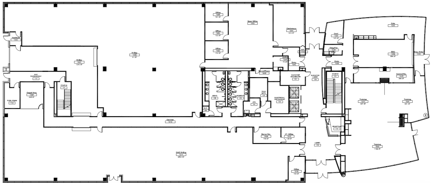
We took an existing space and used the floorplan to design an office space for the Marketing and Communications departments of SpaceX in Orlando, Florida.

In the pre-design phases of the project, we did a lot of research on SpaceX and SpaceX’s culture. We researched ergonomics and the best ways to design an office in order for it to function at highest capacity for SpaceX.
We took the groups of people in these departments and had to decide who needed to be adjacent in the floorplan. We also had to decide how close or far away these people needed to be from the common spaces that everyone uses. We made an adjacency matrix and a bubble diagram to show our own ideas behind the adjacencies.

We took every person or group of people in these departments a made a block diagram of where we were going to place them in the portion of the floorplan we chose to place them. We used the information we concluded from the adjacency matrix and bubble diagram to place them in the block diagram.

Our next step is to develop our concept. Our concept portrays how we are going to design the space. We have a concept name, concept statement, and inspiration pictures all included in the concept.

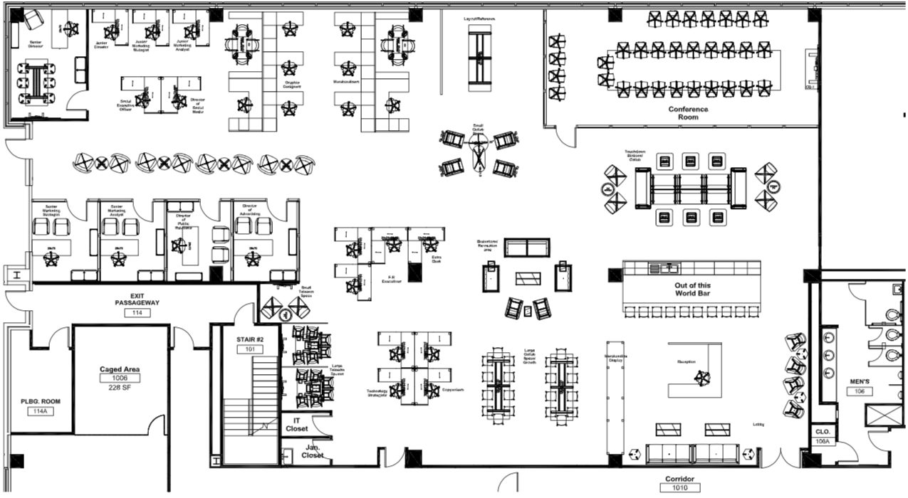
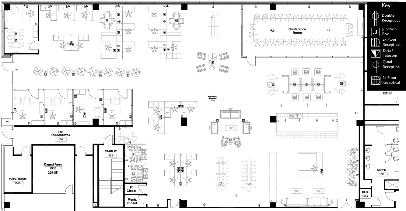
From here, we move out of the pre-design phase and into designing the floorplan of the space. After choosing what portion of the floorplan we needed for our space, we took down or built walls to define our space. The next step is placing the furniture in the new floorplan. While placing furniture we take into account building codes for egress and ADA purposes.

After placing the workstations, private offices, conference room, reception/lobby, we also furnished other ancillary areas. When that was finished, we followed the state of Florida’s electrical codes placing outlets every 12 feet and adding electricity through either junction boxes or floor outlets to every workstation and lounge space and also added the data and telephone hookups at every workstation.

Once all of these things were completed, we were finally ready to work on our 3D models in Revit. I designed and rendered the lobby/reception, the merchandise display case, Out of this world Kitchen and Bar, a brainstorm area, the conference room, and a typical cluster of workstations. This final phase of the design process is the most time consuming but also by far the most rewarding.







After all of these pictures are completed, I put them in photoshop to add the people to show scale and the SpaceX sign backlit where it’s necessary. Finally, I take all of the aspects of my project and put them into a presentation in InDesign.
For this project, I chose the materials and finishes that would be used in the space and made a materials and finishes board to show the materials and label where they would be placed.

All of these things combined put together a final presentation and an overall successful project.
Happy Designing, fellow designers!







